Сдается коммерческая, 662 кв.м., 1/2 эт
| Площадь, кв.м. | 662 |
| Арендная плата в месяц | 331 000 |
|---|---|
| Цена кв.м. в год | 6 000 |
| Коммунальные услуги включены | Нет |
| Возможное назначение | Спортзал |
| Тип здания | Административное здание |
| Тип парковки | За шлагбаумом во дворе |
| Вход cian (avito) | Отдельный со двора |
| Тип аренды | Прямая |
| Ремонт | Без отделки |
| Планировка cian | Смешанная |
| Планировка avito | Кабинетная, Открытая |
| Отделка помещения коммерческая | Без отделки |
| Право собственности | Собственник |
| Залог (avito) | 1 месяц |
| Тип коммерческой | Производственное помещение |
| Этаж | 1 |
| Этажность | 2 |
| Класс здания | B |
| Населенный пункт | Курск |
|---|---|
| Район города | Центральный |
| Улица | улица Ахтырская |
| Номер дома | 19 |
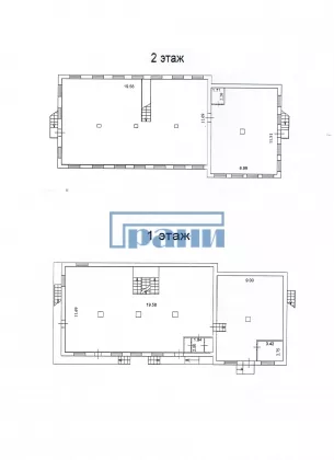
Сдается в аренду Административное здание площадью 665 кв.м. по адресу: Курская область, Курск, ул. Ахтырская, д. 19
Локация:
Центральная часть города, тихое и спокойное место;
Панаромный вид на р. Тускарь и ЖД округ;
Рядом расположены: Central Park, Северный рынок, учебные заведения;
Парковочные места за автоматическими воротами;
Подъезд до территории асфальтированный.
Характеристика помещения:
Административное здание 2 этажа;
Предчистовая отделка;
На двух этажах площади свободной планировки;
Высота потолков от 3,5 м;
Подсобные и бытовые помещения;
Водоснабжение, канализация;
Отопление здания - автономное газом;
Пожарная сигнализация;
На территории выполнено мощение плиткой, асфальтированная парковка, ландшафтный дизайн;
Доступ для арендатора 24/7;
Возможное использование помещения: медицинские услуги, индустрия красоты,
гостиничные услуги, мини-отель, Спа-комплекс, образовательное учреждение.



























