Сдается коммерческая, 300 кв.м., 2/2 эт
| Площадь, кв.м. | 300 |
| Арендная плата в месяц | 130 500 |
|---|---|
| Цена кв.м. в год | 5 220 |
| Коммунальные услуги включены | Нет |
| Тип здания | Административное здание |
| Тип парковки | На улице |
| Вход cian (avito) | Отдельный с улицы |
| Тип аренды | Прямая |
| Ремонт | Офисная |
| Планировка cian | Смешанная |
| Планировка avito | Кабинетная, Открытая |
| Отделка помещения коммерческая | Офисная |
| Право собственности | Собственник |
| Залог (avito) | 1 месяц |
| Тип коммерческой | Помещение свободного назначения |
| Этаж | 2 |
| Этажность | 2 |
| Класс здания | B |
| Населенный пункт | Курск |
|---|---|
| Район города | Сеймский |
| Улица | улица Литовская |
| Номер дома | 2Дк2 |
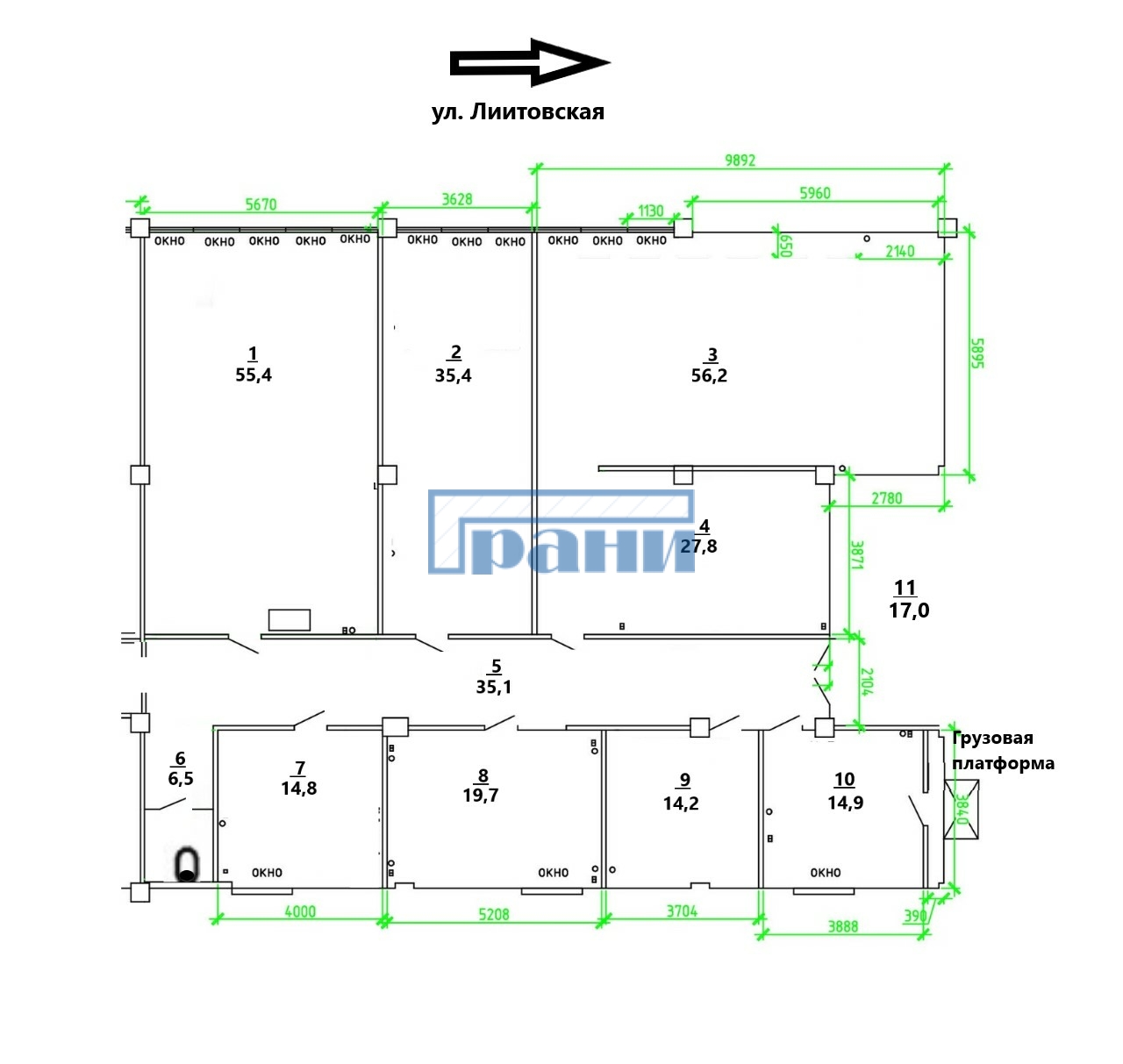
Предлагается в аренду помещение свободного назначения, площадью 300 кв.м по адресу: г Курск,
ул. Литовская, 2д
ЛОКАЦИЯ:
Рядом расположены: Рынок Урожайный, магазин "Пятерочка", транспортно-логистические компании;
Городской кластер малоэтажной застройки;
Активный транспортный поток с направлениями в центр города, на С-з район и в
Сеймский округ;
Оживленный перекресток с пешеходным переходом и светофором.
Характеристика помещения:
Помещение на втором этаже Административного здания;
Входная группа, окна, выходят на фасад;
Отличный обзор наружной рекламы;
Высокий пешеходный и автомобильный трафик;
Большие кабинеты с окнами, переговорная, комната приема пищи;
Бытовые и подсобные помещения;
Выделенная электрическая мощность - 30 кВт;
Помещение оборудовано приточно-вытяжной системой вентиляции;
Водоснабжение, свой с/у, канализация;
Грузовая платформа, грузоподъемность 1 тн;
Доступ к помещению 24/7.



































