Сдается коммерческая, 182.8 кв.м., 1/8 эт
| Площадь, кв.м. | 182.8 |
| Арендная плата в месяц | 120 000 |
|---|---|
| Цена кв.м. в год | 7 877 |
| Коммунальные услуги включены | Нет |
| Тип здания | встроенное помещение |
| Тип парковки | За шлагбаумом во дворе |
| Вход cian (avito) | Отдельный с улицы |
| Тип аренды | Прямая |
| Ремонт | Офисная |
| Планировка cian | Кабинетная |
| Планировка avito | Кабинетная |
| Отделка помещения коммерческая | Офисная |
| Право собственности | Собственник |
| Залог (avito) | 1 месяц |
| Тип коммерческой | Помещение свободного назначения |
| Этаж | 1 |
| Этажность | 8 |
| Класс здания | B |
| Населенный пункт | Курск |
|---|---|
| Район города | Центральный |
| Улица | улица Школьная |
| Номер дома | 1Б |
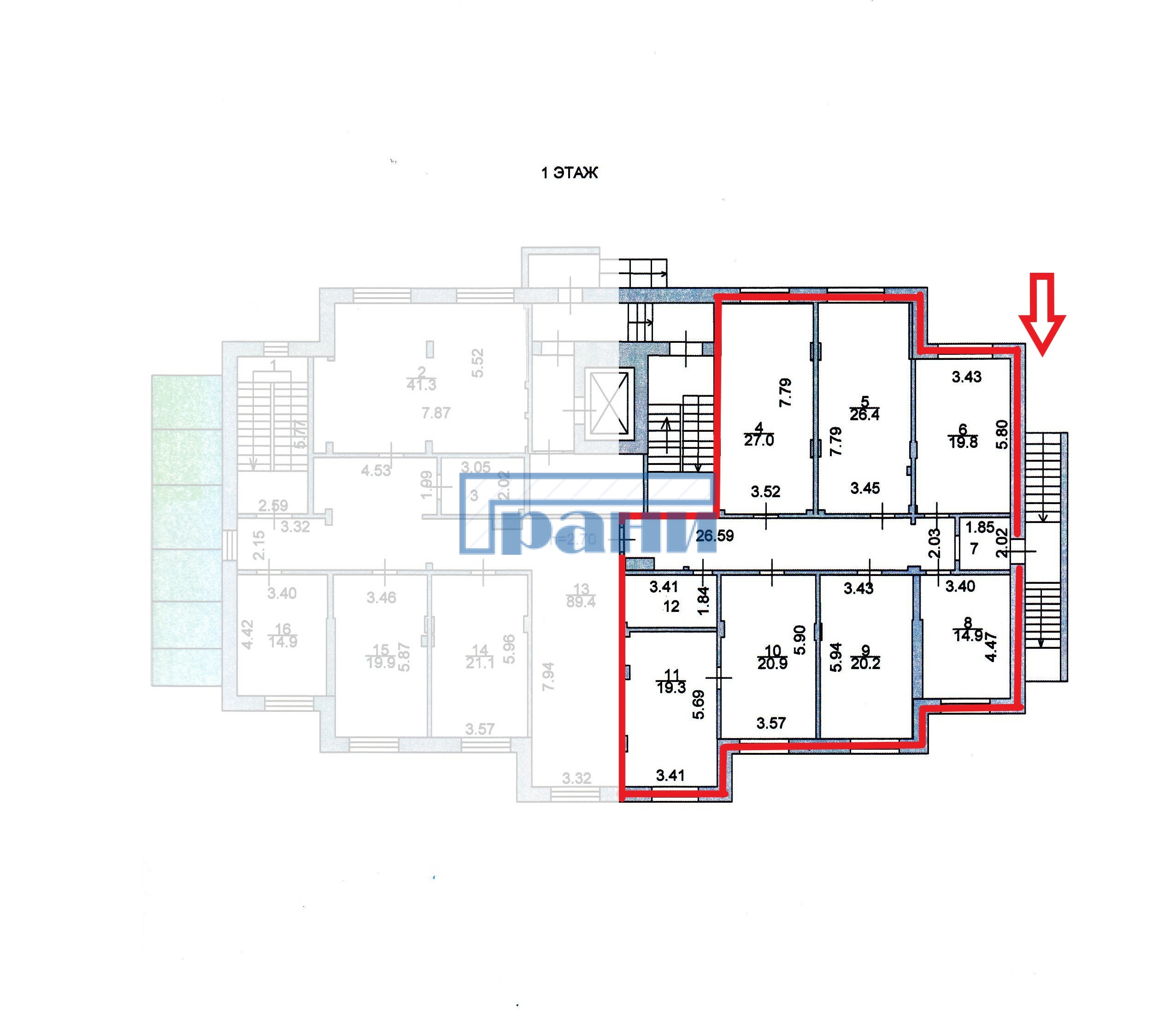
Сдается в аренду помещение свободного назначения площадью 182,8 кв.м по адресу: г Курск, ул Школьная, д 1б
ЛОКАЦИЯ:
Хороший пешеходный и автомобильный трафик;
Центральный район города (рядом Мега Гринн, Европа 10, банки, учебные заведения, аптеки, почта, фитнес клуб Сокол);
До ближайшей остановки общественного транспорта 500 м;
Своя парковка, а также не запрещена остановка у бордюра.
Характеристика помещения:
Помещение с планировкой кабинетного типа;
Расположено на 1 этаже с отдельным входом;
Вход, оборудован устройством "Доступная среда";
Пластиковые окна по всему периметру здания;
Автономное газовое отопление;
Кондиционирование в кабинетах;
Пожарная и охранная сигнализация;
Два сан/узла;
Установлены дополнительные мокрые точки в кабинетах;
Возможно предоставление юридического адреса;
Интернет от нескольких провайдеров;
Разрешенная мощность 15 кВт;
Доступ 24/7.
Помещение подготовлено под медицинскую лицензию.



























