Сдается коммерческая, 325.7 кв.м., 7/11 эт
| Площадь, кв.м. | 325.7 |
| Арендная плата в месяц | 250 000 |
|---|---|
| Цена кв.м. в год | 9 211 |
| Коммунальные услуги включены | Нет |
| Тип здания | Административное здание |
| Тип парковки | На улице |
| Вход cian (avito) | Общий с улицы |
| Тип аренды | Прямая |
| Ремонт | Офисная |
| Планировка cian | Кабинетная |
| Планировка avito | Кабинетная |
| Отделка помещения коммерческая | Офисная |
| Право собственности | Собственник |
| Залог (avito) | 1 месяц |
| Тип коммерческой | Офисное помещение |
| Этаж | 7 |
| Этажность | 11 |
| Класс здания | B |
| Населенный пункт | Курск |
|---|---|
| Район города | Центральный |
| Улица | улица Марата |
| Номер дома | 21 |
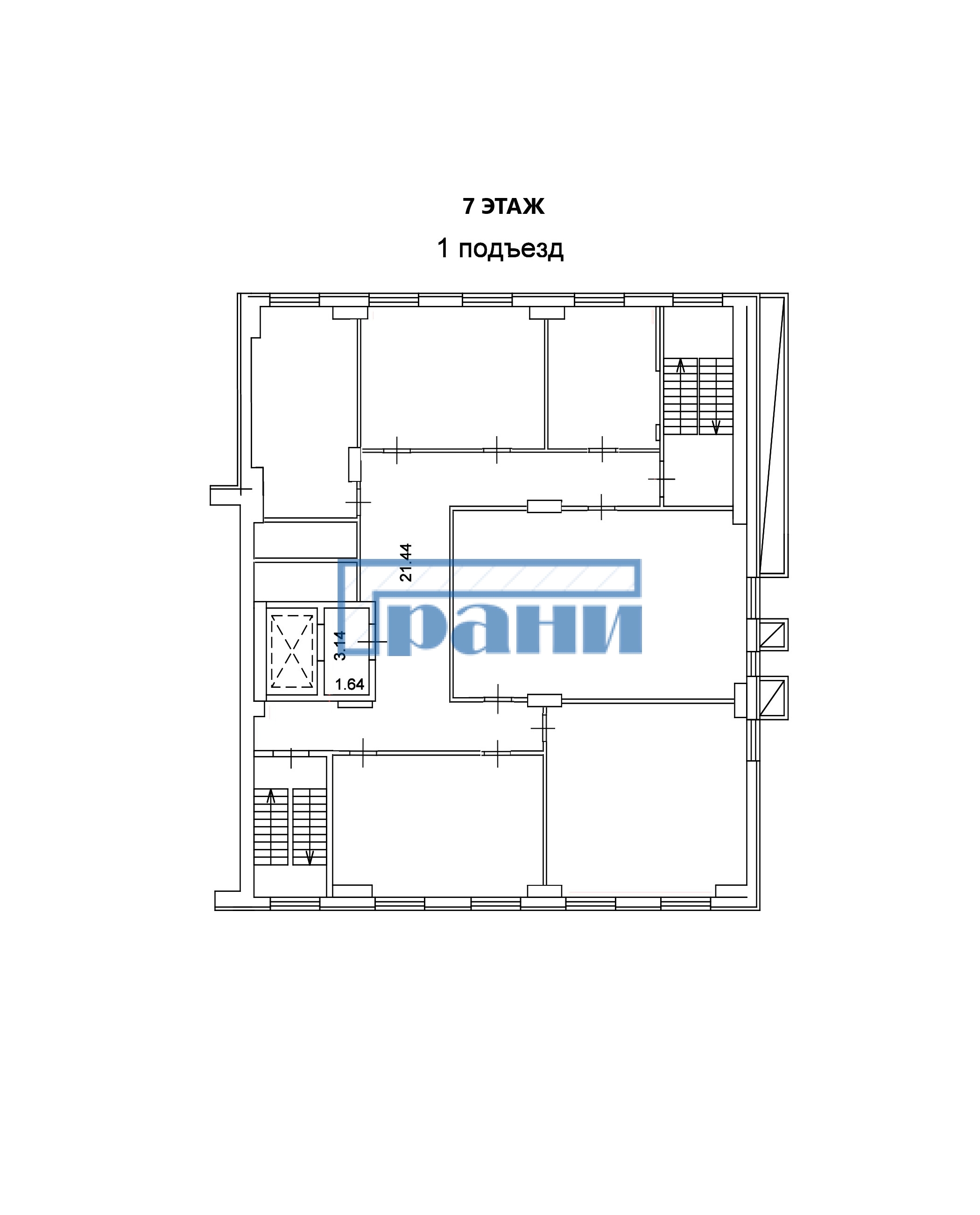
Предлагаем в аренду офисное помещение площадью 325,7 кв.м, 7 этаж по адресу: г. Курск, ул. Марата, д. 21
ЛОКАЦИЯ:
Центральная часть города рядом расположены ключевые административные и финансовые учреждения, Администрация, Почта, Гостиница Центральная, ЦУМ;
Удобное расположение к остановкам общественного транспорта;
Вход со стороны ул. Марата;
Прекрасный вид на город.
Характеристика помещения:
7 этаж в БЦ, кабинетная система;
Выполнен современный ремонт;
Высота потолков 3,0 метра;
Выделено электрической мощности - 15 кВт;
В БЦ газовое отопление;
Круглосуточная охрана, видеонаблюдение;
Лифт на этаж;
Запасной и пожарный выход;
Пожарная сигнализация;
Сан/узел с раздельными кабинками.
Дополнительная информация по запросу.

































