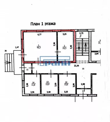
Сдается коммерческая, 59.6 кв.м., 1/2 эт

Обзор
Площадь, кв.м. 59.6
Арендная плата в месяц
40 000
Цена кв.м. в год
8 054
Коммунальные услуги включеныНет
Тип зданияАдминистративное здание
Тип парковкиНа улице
Вход cian (avito)Общий с улицы
Тип арендыПрямая
РемонтОфисная
Планировка cianКабинетная
Планировка avitoКабинетная
Отделка помещения коммерческаяОфисная
Право собственностиСобственник
Залог (avito)1 месяц
Тип коммерческойОфисное помещение
Этаж1
Этажность2
Класс зданияB
Адрес
Населенный пунктКурск
Район городаЦентральный
Улицаулица Школьная
Номер дома1

Сдается в аренду офисное помещение площадью 59,6 кв.м по адресу: г Курск, ул Школьная, д 1

ЛОКАЦИЯ:
Хороший пешеходный и автомобильный трафик;
Центральный район города (рядом Мега Гринн, Европа 10, банки, учебные заведения, аптеки, почта, фитнес клуб Сокол);
До ближайшей остановки общественного транспорта 500 м;
Своя парковка, а также не запрещена остановка у бордюра.

Характеристика помещения:
Помещение на 1 этаже в административном здании;
Отдельный вход с улицы;
Общий  вход, запасной выход;
Независимое газовое отопление;
Возможно предоставление юридического адреса;
Интернет от нескольких провайдеров;
Разрешенная мощность 6 кВт.

Расположение

Важно! На карте не всегда указано точное местоположение. Более точную информацию можно узнать у менеджера, разместившего объект