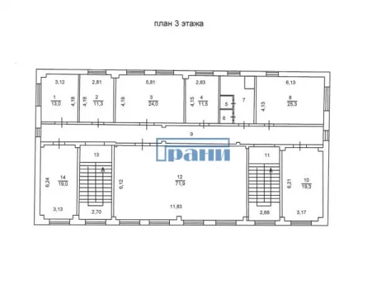
Сдается коммерческая, 280 кв.м., 3/3 эт
| Площадь, кв.м. | 280 |
| Арендная плата в месяц | 138 000 |
|---|---|
| Цена кв.м. в год | 5 914 |
| Коммунальные услуги включены | Нет |
| Возможное назначение | Офис |
| Тип здания | отдельно стоящее здание |
| Тип парковки | За шлагбаумом во дворе |
| Вход cian (avito) | Общий с улицы |
| Тип аренды | Прямая |
| Ремонт | Офисная |
| Планировка cian | Кабинетная |
| Планировка avito | Кабинетная |
| Отделка помещения коммерческая | Офисная |
| Право собственности | Собственник |
| Залог (avito) | 1 месяц |
| Состояние cian | Офисная отделка |
| Тип отопления cian | Автономное газовое |
| Тип коммерческой | Офисное помещение |
| Этаж | 3 |
| Этажность | 3 |
| Класс здания | A |
| Населенный пункт | Курск |
|---|---|
| Район города | Центральный |
| Улица | улица 50 лет Октября |
| Номер дома | 116Г |
Сдается этаж в административном здании площадью 280 кв.м по адресу: 50 лет Октября, д 116Г
ЛОКАЦИЯ:
Центральный район города;
Удобная транспортная доступность;
Остановка общественного транспорта - 50 м;
Очень интенсивный автомобильный трафик;
В ближайшем окружении: Курский Автовокзал, ЮЗГУ, Северный авторынок, ГИБДД, Транспортные компании, ТД "МАЯК";
Своя огороженная парковка до 200 м/мест, двое въездных ворот.
Характеристики помещения:
Отдельно стоящее здание 3 этажа;
Огороженная территория,
Отдельный вход, 2 запасных выхода;
Пожарные и эвакуационные выходы;
Состояние – выполнен качественный ремонт;
Высота потолков 3,1 м;
Центральные коммуникации, вода холодная/горячая, канализация;
Автономное газовое отопление;
Система вентиляции;
Кондиционирование в помещениях;
Пожарная и охранная сигнализация;
Система видеонаблюдения;
Проведена телефонная и интернет линии;
Разрешенная мощность 100 кВт (возможно увеличение);
Имеется резервная линия электроснабжения от отдельной подстанции;
Доступ для арендатора 24/7.
Отлично подойдет для офиса крупной компании или организации бизнеса в сфере оказания услуг (медицинский центр, IT-индустрии).





























